/
【外観】■≪同仕様写真≫■制震装置(SAFE365)搭載!制震+耐震の地震に強い安心の邸宅!お気軽にお問い合わせ下さい!■ ■ペアガラス使用で結露の心配もありません!■
- 物件名
- クレイドルガーデン高井田 1号棟 /新築一戸建
- 価格
- 3,480万円
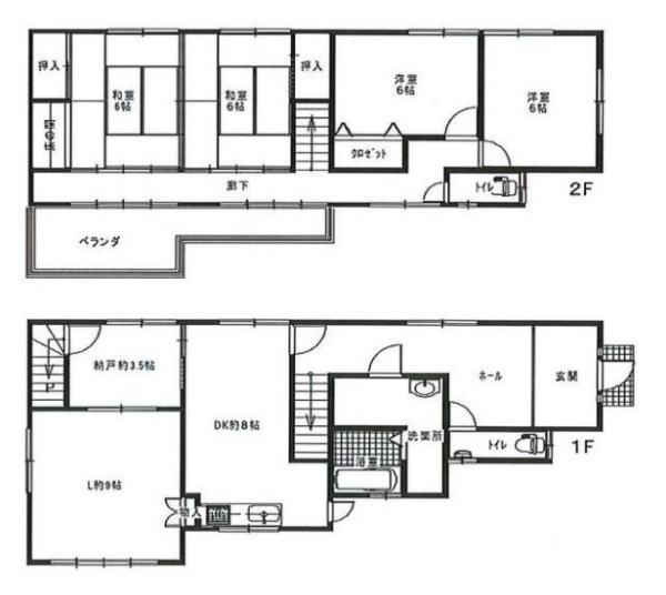
- 建物面積
- 100.44㎡
- 土地面積
- 44.12坪(145.87㎡)
- 築年月
- 2026年4月(予定)
- 総戸数
- -
- 設備条件
-
- 閑静な住宅地
- 駐車3台可
- 設備(その他)
-
-
-
- 駐車場/月額
- 有(3台)/-
- 土地権利
- 所有権
- 国土法届出
- 不要
- 用途地域
- 第一種中高層住居専用
- 取引態様
- 一般媒介
- 引渡し
- 2026年4月下旬
クレイドルガーデン高井田 1号棟 /新築一戸建の基本情報
クレイドルガーデン高井田 1号棟 /新築一戸建の詳細情報
クレイドルガーデン高井田 1号棟 /新築一戸建で募集中の物件
近隣の物件
クレイドルガーデン高井田 1号棟 /新築一戸建